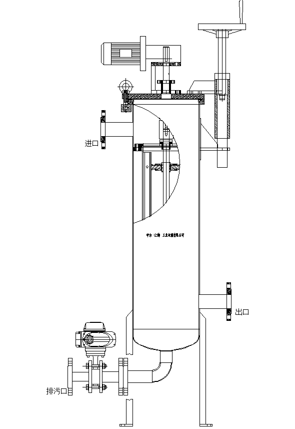
产品概述
不锈钢电动刷式自清洗过滤器,无需人工看护,自动运行,应用广泛。具有处理水量大、自动过滤、清洗、排污、不间断供水等优点。过滤器主要由智能控制系统和电力驱动的自清洗装置、自动排污阀组成,设备结构简单、性能稳定,过滤精度高、清洗时间短、耗水量少、压力损失小,能够为您提供稳定可靠的水质保证,是各类水系统的理想选择。
自清洗过程
过滤器的自清洗过程是依靠沿着滤筒内表面做旋转运动的清洗刷和排污阀共同完成,打开的排污阀使被堵塞的滤筒内形成负压,附着在滤筒内壁的滤饼被清洗刷清扫下来因负压的关系经排污阀排出在本体外。整个清洗过程大约为60秒,清洗时系统不断流。
控制方式
不锈钢自清洗过滤器操作配备差压/时间/手动三种功能,同时我们还为您特别设计了优先级的控制功能,即无论在任何情况下,只要系统压差达到预定值,设备都会启动自清洗功能,从而更好的保障您的系统正常运行。
应用范围
工业过滤应用:化工、钢铁、造纸、电厂、汽车、矿业、水厂等产业的水源水冷却水和中水及旁滤水、制冷采暖系统循环水、冷却水、冷冻水过滤;保护喷头;污水三级处理;市政水回用;车间用水;R.O.系统前过滤等。
灌溉过滤应用:地下水;市政水;江河、湖、海水;果园;苗圃;温室;高尔夫球场;公园等。
具有高技术的智能型全自动过滤器
自动化程度高,处理量大
自行清洗排污、不间断供水、应用广泛
过滤精度高、清洗时间短
耗水水量少、压力损失小

